在水泥粉磨系統中,配料秤的精準穩定性對水泥生產的質量和成本起到了關鍵性作用。目前粉體配料常用的設備主要有螺旋絞刀秤、回轉下料器、轉子秤等控制設備。其中轉子秤在水泥配料過程中得到了較多應用。
1、常見的幾種轉子秤結構形式
其中按照轉子秤結構形式,常見的有天平式轉子秤(物料運動180度,如下圖1),轉子秤(物料運動240度,如下圖2),雙層轉子秤(物料運行360度,如下圖3)。

圖1

圖2

圖3
2、雙層轉子秤具有的優勢
“兩高一小”
1、高精度:360°大區間計量,高精度傳感器,計量精度達到0.5%;
雙層轉子秤每層轉子都參加鎖料、喂料和計量,實現360度區間計量,更精準。
2、高穩定性:雙層轉子曲徑階梯式迷宮鎖料,鎖料鎖風效果好,穩定性高;
雙層轉子秤能實現粉體物理堆積密封,實現對粉體鎖料鎖氣的效果,內部各轉子部件均采用耐磨鋼,運行壽命更長。雙層的回轉喂料形式能使粉狀物料均勻給料,同時可根據實際物料流量進行調節控制,避免了單轉子的沖料現象,解決粉狀物料的配料難題。
3、體積小:安裝空間可適用于大多數工藝場合。
秤體進出料口在一條垂直線上,進出料口高度可低至650mm,可適用于大多數現場空間。
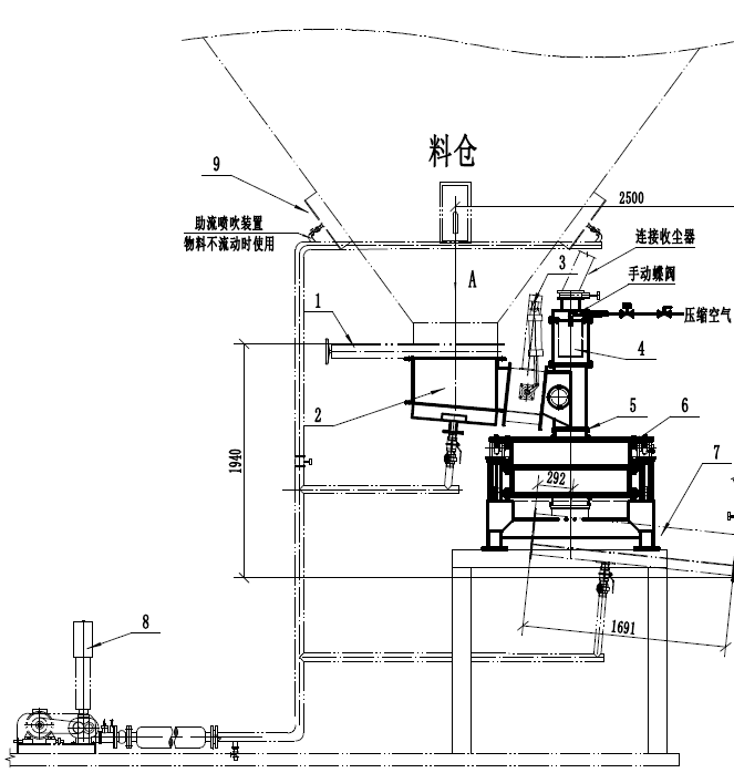
3、雙層轉子秤方案布局

4、雙層轉子秤的調節控制
物料在雙層轉子秤內部填充相對穩定情況下,雙層轉子秤的流量基本上跟雙層轉子秤的速度成正比。因此不同的流量對應了不同的速度。在調節控制時,可以根據設定流量的大小,直接可以計算出雙層轉子秤的頻率,給定到雙層轉子秤,在這個比例頻率的基礎上,設定PID調節的上限和下限,避免PID進行大幅度的無效調節。

5、雙層轉子秤的標定
01去皮
將雙層轉子秤頻率設定到25HZ運行,啟動運行雙層轉子秤,關閉進料閥門,確認秤內空料的情況下進行去皮操作。
02校準
(1) 速度校準
將雙層轉子秤頻率設定到25HZ運行,使用秒表實測轉子軸轉動10圈的時間計算得出轉子的實際速度,跟控制系統計算的速度對比。如果誤差在允許范圍以內,則標準系統對于速度的采集和計算是準確的。如果有誤差,需要檢查編碼器,速度參數等影響因素。
(2) 砝碼動態校準
將砝碼放置在減速機軸中心點或者傳感器正下方后,在25Hz的速度下讓秤轉動10圈,對比秤上的累計顯示值和砝碼實際重量(砝碼重量*10),進而調整標定參數。
(3) 實物標定
在有條件的情況下可以進行實物標定。實物標定通過秤的進料實際量或出料的實際量與控制系統累計量相比,進行標定調整。建議重復操作3次以上,取得平均值后在進行標定調整。在做實物標定時需要注意秤轉速需要在常用流量的速度轉動下料,下料時,流量需要相對穩定下料前秤體內需要充滿料。
對于以上幾種標定方式,在有條件的情況下盡量采用實物標定的方式,此方式是比較準確的方式。在沒有條件的情況下可以選擇砝碼標定,因為砝碼標定難以完全模擬物料下料的狀態,砝碼標定的精度要低于實物標定。
6、雙層轉子秤的使用維護
1.雙層轉子秤在使用過程中,要根據使用說明定期對軸承進行加油;
2.定期清理秤上方的雜物及灰塵,保持秤體的干凈;
3.發現誤差較大時,需要檢查進料庫及出料口的軟連接是否有硬物卡住,或者秤體其他部位是否有硬連接接觸到;
4.定期檢查收塵管道是否有堵塞;
5.設備長時間不用時,需要將秤體內的物料排空,防止物料在秤體內板結造成設備無法正常使用。
7、某水泥廠使用案例


某水泥廠原使用一臺天平式轉子秤,用戶在使用一段時間后,反饋喂料波動大,經常沖料,計量不準。后將天平式轉子秤更換為雙層轉子秤以后,反饋喂料穩定,計量準確。
8、精準計量創造的經濟效益估算
以普通的粉煤灰物料為例,市場上計量設備一般的計量控制誤差為2%-10%,生產過程中為保證水泥質量下限會增加熟料參量1%-3%,按平均增加參量1%計算,熟料按照260元/噸計算。一個年產100萬噸的水泥廠,每噸將增加2.6元的成本,因此將增加高達260萬元的隱形生產成本。
總結
在水泥粉磨配料生產中,雙層轉子秤以其獨特的優勢,使粉體配料的穩定性和精準度都實現了質的提升,對降低生產成本,提高水泥質量起到了重要作用,實現了精準創造價值的目的。